
Admit it: At least once in your life, you've wanted to live in a baseball stadium. Maybe you thought if you just hid in a bathroom stall after the last out was recorded, you could emerge long after everyone had left, leaving you to scavenge for leftover hot dogs and run out on the field in the dead of night.
That particular dream may never come true, but it turns out that actually getting to live in a baseball stadium is more attainable than you think -- at least, if you move to Indianapolis. There sits old Bush Stadium (also known as Perry Stadium or Victory Field) -- the home to the Negro League ABCs and Clowns, as well as the Triple-A Indianapolis Indians before it closed down in 1996.

Usually, when stadiums are shuttered, they're left to rot before they're torn down to make way for a parking lot or a brand new office park. But not here. Core Redevelopment's John Watson had a dream for the old ballpark, and he reached out to Indianapolis' Heartland Design to come up with the plan to transform it into an apartment building -- likely the first one of its kind in existence.
After surveying the site to figure out what the conditions were, and finding plans from a 1987 remodel in the Drawings & Documents Archive at Ball State University, the company was ready to start figuring out just how it could make Watson's unique vision a reality.

Of course, that's easier said than done. After closing, the stadium was used for storage in a "Cash for Clunkers" program, so broken automobiles littered the field.
"The cars were packed in so tight we were literally climbing over hoods to get to parts of the building," Nick Zimmerman, an architect at Heartland Design who worked on the project, wrote to MLB.com in an email.

The goal was to keep as much of the original stadium as possible -- something that is obvious from the minute you pull up to the complex. The entrance is actually the same one fans walked in to catch a ballgame.
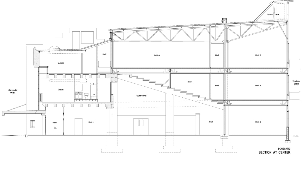
"We knew early on we wanted to retain as much of the original building as possible, especially the main entrance portion. The owner/developer, John Watson, was of the same mind, and we were able to save much of the original entry area, the outer facades, roof, and stadium lights. We were originally hoping to salvage the press boxes, but they were so deteriorated they couldn't be saved; they were, however, rebuilt more or less as they were," Zimmerman wrote.
This is what the entrance to the building looks like today:

Compare that to how it looked back in the day:
Of course, a stadium isn't made to be lived in -- it's built to let people come in, sit for a few hours, and leave after consuming a metric ton of hot dogs. So, while the two companies wanted to keep as much of the original building as possible, they were presented with some tricky architectural questions.
Most apartment complexes are filled with cookie cutter floor plans -- only changing depending on the number of bedrooms, or perhaps the placement of the bathroom. That's not the case here.
"The boomerang shape made laying out the drawings quite a challenge," Zimmerman wrote. "So much of the building was out of the typical orthogonal grid most buildings are developed around. Because of this, we ended up with 14 main unit types, and even within those unit plans there was some variation as they fit around the curve of the building."

The strange dimensions are reflected in the layout of the rooms. There are lofts, one-bedroom, two-bedroom and studio units -- but few follow the same square footage or layout pattern as the others.
"You end up designing within the space you have allotted the best you can," Zimmerman wrote.

Though plenty of the stadium was preserved -- including that majestic entrance -- plenty had to be scrapped. Grandstands aren't exactly suited for a modern apartment.
"Everything in the grandstands between the floor slab and the roof structure -- save the columns -- had to come out so new floors could be put in," Zimmerman wrote. "Getting the new floors to align with existing exterior openings and levels at retained portions of the structure, working around existing columns and roof trusses, and working within the existing shape of the building made it quite a 3D puzzle to think through. It's certainly the most interesting and challenging historic building we've dealt with."

While the apartments themselves are cool, the features don't end there. One of the original outfield walls still marks the edge of the property, with some Wrigley-like greenery scaling the brick:

And forget having a boring, routine swimming pool. The outdoor space for the tenants has kept the old baseball field -- kind of. Amid the greenery is the layout of a diamond, with the dirt replaced by concrete.
Just imagine, if you lived here, this is what you could be looking at every time you glanced out your window -- easily imagining the players like Hank Aaron, Roger Maris or Ken Griffey Sr. that used to line up on the field.

