
SEATTLE -- John Stanton hinted that the Mariners had plans in the works to further revitalize the SoDo district near T-Mobile Park when the club formally received its 2023 All-Star selection.
On Wednesday, those plans came into a much clearer scope.
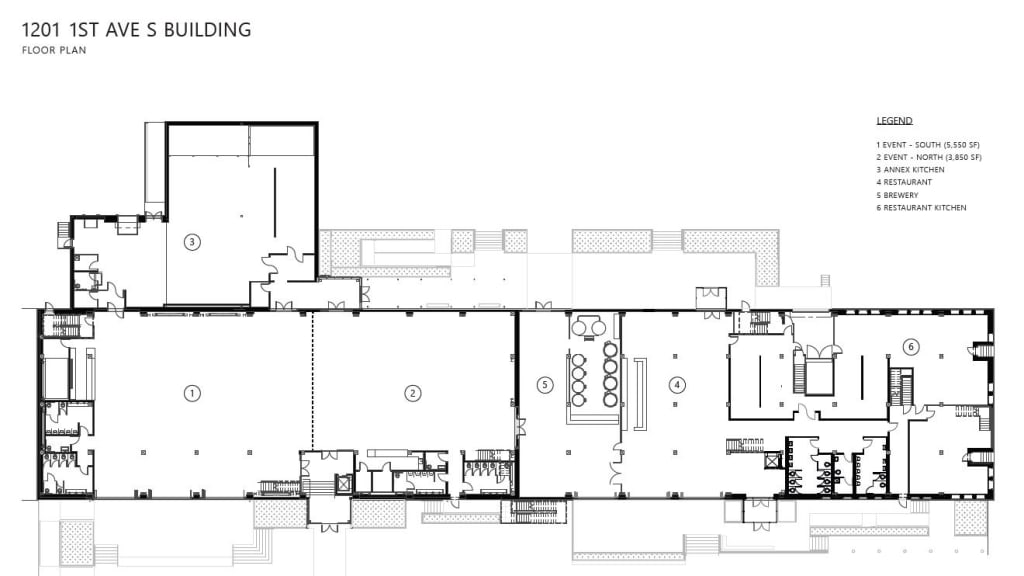
The Mariners announced that they’ve signed a long-term lease for the old Pyramid Brewery building located just West of the ballpark, a once popular pregame destination that the club hopes to revitalize and open by July or August of next summer.
Immediate plans for the venue include a restaurant that will hold 250 people and a boutique brew pub, as well as flexible interior event space that could accommodate groups as large as 800 people. Interior demolition work is already underway.
The headliner is the brewery that will be installed -- "Steelheads Alley," named for the 1946 Seattle Negro League team, and run by Metier Brewing, the state's first black-owned brewery. Décor of the brewery, which will be located between the main restaurant and the event space once occupied by Pyramid’s brewing equipment, will pay tribute to teams and players from the Negro Leagues.
“When the chance to partner with the Mariners arose, we were incredibly excited by the opportunity to be part of this history and reach even more people with our award-winning beers and mission to inspire bigger dreams for all,” said Rodney Hines, Metier’s CEO and co-founder. “We feel really fortunate to be joining the organization at such an exciting and critical time and look forward to the many ways this space will provide access to fans and community members from all backgrounds.”
A critical component in the space’s development is to create community space and support businesses with women and Black, Indigenous and People of Color (BIPOC) ownership.
“We hope to activate the space in ways that will provide economic opportunities and equitable outcomes for the broader community,” said Fred Rivera, Mariners executive vice president and general counsel.

But these are merely the first stages. The Mariners plan to renovate the 30,000 square-foot space to include an indoor/outdoor area and future office space. Above the ground level, which will be the main attraction, there is 6,000 square feet of space currently configured as offices on the second and third floors.
In their press release, the Mariners noted that plans for that area have not been finalized, but that it will likely be configured for “a number of different purposes including hosting, on a pro bono basis, small community nonprofits working to advance social and racial equity goals and programs that support women and BIPOC owned businesses. The offerings could include free, shared workspace, mentorship, business development support, access to investment resources and more.”
Andersen Construction is the General Contractor with SHKS Architects providing design and restoration consulting. Contractors have committed to meet goals for significant participation of women- and BIPOC-owned companies in all aspects of the project, including design, construction, and supplies. This commitment is closely aligned with the Mariners' aim to increase collaboration with diverse business partners. SHKS Architects are overseeing the design and restoration.
KING 5 reported that the lease is for 23 years. Rivera told the news station that the club will spend “tens of millions” on the renovation, which aligns with what Stanton said from the Space Needle at the All-Star announcement on Sept. 16. The Mariners’ chairman and managing general partner said that day that the club will commit $50 million in enhancements to the ballpark and neighboring areas.
“We now know that we'll have the All-Star Game in 2023, and that's kind of a deadline for us to substantially improve those facilities to create more opportunities for fans to enjoy the game and the events that come before and after the game,” Stanton said then.
These efforts follow a trend that’s been seen across MLB and other sports to enhance the gameday experience. The Ballpark Village in St. Louis and The Battery Atlanta are perhaps the most prominent such examples. But the Pyramid space will also be in use during NFL games played by the Seattle Seahawks.


